项目标签
设计公司:
[Taller Segovia Molina]
位置:
[墨西哥]
类型:
[建筑
材料:
[石材 ]木材 ][绿植 ][玻璃]
标签:
[克雷塔罗 ][室内设计 ][小而美的住宅]
分类:
[住宅室内设计 ][住宅建筑 ][屋顶花园 ])[独栋住宅]
项目介绍
DESCRIPTION
本项目的设计初衷是要在室内打造一个绿洲,为业主提供独处和沉思的地方。设计者建造了厚实的墙体,既能充当建筑的二层表皮,又可以保护业主一家免受周围密集区域的视线影响。室内空间中,自然光线能够透过三层露台照射进来,形成了宁静亲密的氛围。
Casa Aguilar emerges with the idea of creating an interior oasis where a family can experience introspection and contemplation while inhabiting their home. This intention is reflected in its architecture through an envelope of thick walls that acts as a second skin, protecting from views towards a densely planned area. Inside, natural light filters through patios on each of the three levels, creating a serene and intimate atmosphere.
▼项目概览,Overall view © Zaickz
▼顶视,Top view © Diego Vázquez Mellado
▼项目近观,Close view © Diego Vázquez Mellado
房屋的高墙从外侧看起来像是漂浮在地面之上,呈现出封闭的感。内部设置了开放式的楼梯,便于整合一系列的自然花园,并且吸引来昆虫和当地独有的鸟类。房屋的结构几乎是密闭的,只有朝向内部庭院的方向是开放的,业主能够从内部感受到充满绿意的氛围。本项目为业主打造了一个平静且私密的居住环境。
From the exterior, the house is perceived as a closed volume with high walls that seem to float above the ground. The open floor allows for the integration of a succession of wild gardens, aimed at attracting pollinating insects and endemic birds. With an almost hermetic structure, the house opens only towards its internal landscapes, allowing its flora and fauna to be enjoyed and heard from the inside. This creates a peaceful, serene and private environment for its inhabitants.
▼远观,Distant view © Diego Vázquez Mellado
室内的布局已开放空间为主,每个空间都有着各自的特色。在首层,空间布局引导人们从主入口进入到社交空间,厨房和餐厅与后侧的露台相连,通高的空间内因此充满了自然光线。墙壁采用的纹理和材质为室内营造出温暖的感觉。
The organization of the house is based on open spaces, each with its own character. On the ground floor, these spaces guide the journey from the main entrance to the social area. The kitchen and dining room open to a rear patio that floods the double-height interior with light. The texture of the walls is balanced with the warmth of the light-toned carpentry.
▼建筑立面,Facade © Zaickz, Diego Vázquez Mellado
在空间的中心轴上,根据亲密感的不同产生了一种空间序列,从封闭空间过渡到开放空间,这种序列也引发了视觉和感官上的变化,这种二元性的手法贯穿了房屋的三个楼层,不同的区域都是从一个较为阴暗狭窄的空间开始,进而呈现出一个宽敞明亮、且能够看到室外景色的环境。每个空间中都能感受到绿植、风、雨和天空等自然元素。
The pursuit of intimacy, as the central axis of the project, gave rise to a spatial sequence that provokes visual and sensory changes when moving from a closed space to an open one, and vice versa. This duality is experienced throughout the three levels of the house, where each area begins with a dark and reduced space, for it to then reveal a wide and luminous environment with views towards the exterior. The daily experience is enriched by the integration of vegetation, wind, rain, and the sky in these spaces, which frame each area of the house.
▼入口处,Entrance © Diego Vázquez Mellado, Zaickz
▼入口细节,Entrance detials © Zaickz
▼入口空间,Entrance space © Diego Vázquez Mellado
▼入口空间细部,Entrance space details © Diego Vázquez Mellado
室内在朝南的方向上布置了私人区域和公共区域,家庭办公房间和一个陶瓷工作室朝向北方,两个房间都安装了大型玻璃。陶瓷工作室室一个完全开放的空间,与双层的露台相连。布置在顶层的家庭办公室也与一个较小的露台相连,自然光线能够照射进来,为室内营造舒适的环境。
The private and semi-public areas include, in addition to the south-facing rooms, a home office and a ceramics workshop, both oriented northward with large windows. The ceramics workshop, a completely open space, connects to a terrace that transitions from the domestic scale of the interior to a double height. On the top level, the home office is also linked to a smaller terrace, and receives indirect light, creating a comfortable atmosphere.
▼起居空间,Living space © Diego Vázquez Mellado
▼餐厨空间,Kitchen and dining area © Diego Vázquez Mellado, Zaickz
▼办公空间,Office space © Zaickz, Diego Vázquez Mellado
▼陶瓷工作室,The ceramics workshop © Diego Vázquez Mellado
▼陶瓷工作室细部,Ariel view of the station © Diego Vázquez Mellado
屋顶的设计代表了设计者的思考了敬畏,这里也布置了一个花园,被植物和自然所环绕,呈现出舒适的氛围,并且私密性更强,更加适合冥想。
The pursuit of contemplation and awe culminates in the design of the rooftop, where the last garden is located. This space, immersed in the vegetal landscape, is intended for meditation and maintains a cozy and sheltering atmosphere, surrounded by plants and insects that inhabit it.
▼卧室,Bedroom © Diego Vázquez Mellado
▼卫生间,Toilet © Diego Vázquez Mellado
▼室内设计细部,Interior detials © Diego Vázquez Mellado
附加说明
ADDITIONAL ASPECTS
本项目的一个设计重点是最大限度地利用可渗透面积,通过设计露台和花园,本项目的可渗透面积达到了80%。此外,另一个设计目标是在10.5米最大高度的限制内,为公共区域打造通高的空间,设计者通过对土壤进行分析后将部分建筑结构埋入地下实现了这一目标。
An important aspect was maximizing the permeable area, achieving 80% thanks to the design of terraces and gardens. Additionally, the goal was to provide the public areas with double height, respecting the maximum allowed limit of 10.5 meters. This objective was achieved by burying part of the ground floor after soil analysis.
▼屋顶花园,Roof garden © Zaickz
▼花园细部,Garden detials © Diego Vázquez Mellado
Aguilar住宅在打造宽敞的空间的同时保留了人性化的尺度。设计者巧妙地利用了封闭和开放的空间,给业主带来了丰富的体验,还保证了与自然环境之间的密切联系。窗户的作用不仅是为房屋提供通透度,还根据不同的朝向保证了室内最适宜的温度。本项目为业主打造了一个宁静的避难所,他们可以在此欣赏到Querétaro美丽的日落。
Casa Aguilar offers monumental spaces while maintaining a human scale. Its design plays with closed and open spaces, providing an enriching experience and a continuous connection with its natural surroundings. The strategic placement of windows not only facilitates the full opening of the house, but also ensures optimal thermal comfort by taking advantage of the orientation and interaction with the exterior. These dualities make the residence a serene refuge from which to enjoy the Querétaro sunset.
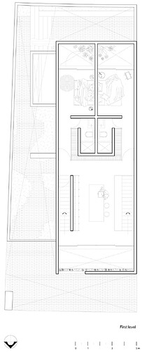
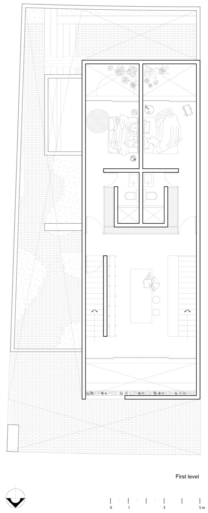
▼首层平面图,ground floor plan © Taller Segovia Molina
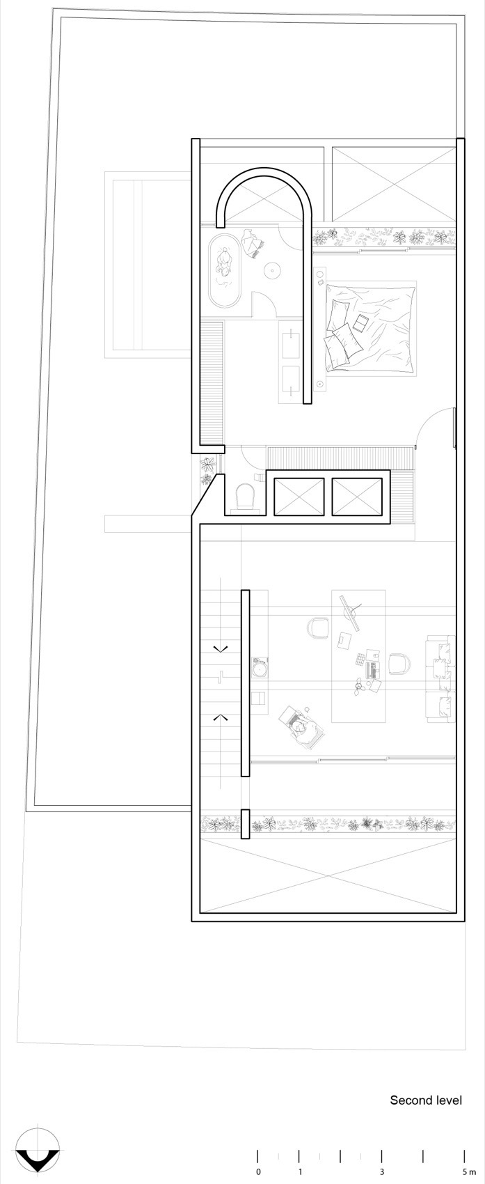
▼二层平面图,first floor plan © Taller Segovia Molina
▼三层平面图,second floor plan © Taller Segovia Molina
▼屋顶层平面图,rooftop plan © Taller Segovia Molina
▼剖面图,section © Taller Segovia Molina
TECHNICAL SHEET
Location: Querétaro, Mexico
Year: 2024
Area:
Plot: 250 m²
Built: 330 m²
Firm: Taller Segovia Molina
Director: Daniel Segovia Molina
Team
Daniela Sigales
Ernesto Perea
Social Media: @tallersegoviamolina
Website: www.tallersegoviamolina.com
Client: Private
Photography
ZAICKZ | @zaickz.moz
Diego Vázquez Mellado | @diegovmellado
Collaborators
Structure: Andrés Casal
Landscaping: Matorral







































